Скачать курс «Проект одноэтажного дома-бани 9,55х6,29 м» — Виктор Мельник | Отзывы | Складчина

Проект одноэтажного дома-бани 9,55х6,29 м

0/5 ·
Создан: 5 декабря 2024 г. Обновлён: 26 марта 2026 г.

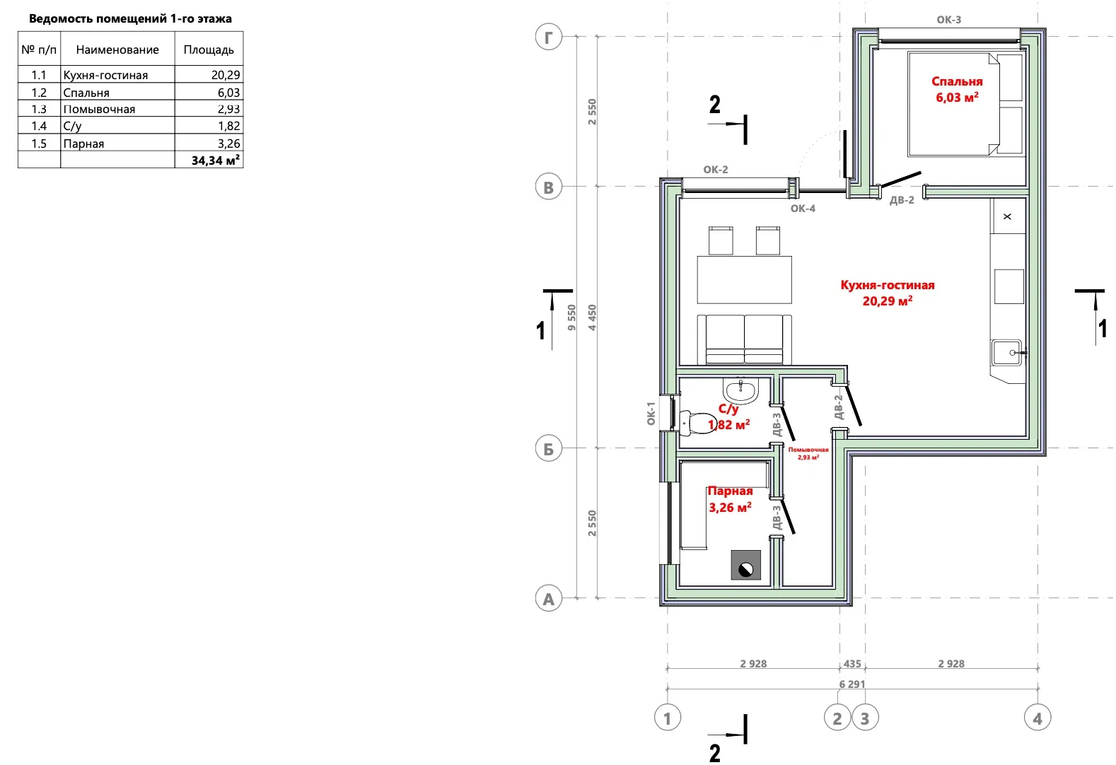
Готовый архитектурно-конструктивный проект каркасного дома-бани площадью 34 м² для самостоятельного строительства. В основе проекта лежит оптимизированная планировка, включающая парную, помывочную, кухню-гостиную, санузел и спальню.

Комплект документации позволяет рассчитать бюджет на закупку материалов — при реализации проекта под ключ стоимость строительства начинается от 25 000 руб./м². В состав входят конструктивный раздел (КР) с узлами и схемами сборки каркаса, эскизный проект (ЭП) и детальный файл распиловки пиломатериалов. Проект учитывает все ключевые параметры теплоизоляции: утепление пола, стен и кровли составляет 200 мм.

Другие материалы автора

Проект Chivas: комфортное жилье Можно купить
2 170 ₽ 7 990 ₽ −73%

Проект Chivas: комфортное жилье

Виктор Мельник
0 · 0 отзывов

Отзывов пока нет. Будьте первым!

Ещё интересные курсы

Сотри морщины как ластик: омоложение лица для 30-60 лет Можно купить
80 ₽ 1 700 ₽ −95%
3.0

Сотри морщины как ластик: омоложение лица для 30-60 лет

Инна Нефедовская
Жеоды, Ледники и Петри Арт: Медуза Можно купить
190 ₽ 1 990 ₽ −90%
5.0

Жеоды, Ледники и Петри Арт: Медуза

Саша Федорова
Психоаналитический киноклуб: Тайна семи сестёр Можно купить
300 ₽ 950 ₽ −68%

Психоаналитический киноклуб: Тайна семи сестёр

Юлия Гордеева
Стоп-тревога. Как избавиться от тревожности, навязчивых мыслей и постоянных переживаний Можно купить
700 ₽ 5 000 ₽ −86%

Стоп-тревога. Как избавиться от тревожности, навязчивых мыслей и постоянных переживаний

Борис Литвак
Приватный канал по соблазнению Предзаказ
747 ₽ 4 000 ₽ −81%

Приватный канал по соблазнению

Джон Доллар
Удовольствие от чтения: русская классика. III цикл. Лекция: Александр Блок Можно купить
244 ₽ 550 ₽ −56%

Удовольствие от чтения: русская классика. III цикл. Лекция: Александр Блок

Леонид Немцев
Рекомпозиция или набор мышц дома Можно купить
406 ₽ 2 990 ₽ −86%

Рекомпозиция или набор мышц дома

Данила Кабуров
Ватные игрушки: Ретро дети Предзаказ
178 ₽ 1 200 ₽ −85%

Ватные игрушки: Ретро дети

Anastasiya Bonica
Страна утренней свежести. Россия и Корея в XIX–начале XX вв. Предзаказ
250 ₽

Страна утренней свежести. Россия и Корея в XIX–начале XX вв.

Юлия Уварова